Доставка осуществляется с центрального СКЛАДА из Москвы в пункт выдачи товара транспортной компании ПЭК

Характеристики:
Артикул
HL 72N
Код
193863
Производитель
HL
Страна
Австрия
Вес, кг
0,830
Описание товара
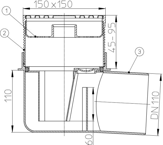
HL 72N Трап горизонтальный выпуск DN 110
 Трап для внутренних помещений с решёткой 147х147мм в подрамнике 150*150 мм, с сеткой для улавливания мусора, высотой гидрозатвора 50мм, без "тарелки" для подхвата гидроизоляции, с горизонтальным выпуском
 Трап предназначен для установки в подвалах и отвода в канализацию сточных вод с уровня пола.
 Материал составных частей
Решетка нержавеющая сталь
Сетка для мусора
полипропилен
Подрамник полипропилен
Надставной элемент полипропилен
Корпус полипропилен






  Технические характеристики:

Максимальная разрешенная нагрузка                                           до 300 кг
Температура отводимой жидкости                                                  до 85°С
Срок службы                                                                        не менее 50 лет

Особенности монтажа:
1. Высота надставного элемента трапа регулируется от 95 до 45 мм (подрезается в зависимости от расстояния от чистовой поверхности до отводящей трубы). При необходимости увеличить высоту применяются удлинители HL350.

2. Выпускной патрубок трапа HL72N предназначен для соединения с любой канализационной раструбной трубой из ПВХ или ПП (REHAU, WAVIN и т.д.). Если для ливневой канализации применяются стальная или чугунная безраструбная труба (SML), необходимо использовать переходник с ПП/ПВХ на Чугун/Сталь.

3. До завершения монтажных работ, для исключения попадания посторонних предметов в систему канализации, в корпус трапа устанавливается монтажная заглушка (идёт в комплекте). При установке надставного элемента,  который подрезается в зависимости от необходимой высоты, она удаляется.

4. Встроенное запахозапирающее устройство, в котором есть заглушка для возможности прочистки отводящей магистрали, может сниматься, что позволяет очищать внутренности трапа от загрязнений.

5. Если нагрузка на трап превышает 300 кг, в качестве надставного элемента используется HL66, выдерживающий нагрузку до 1,5 тонн.

Внимание!
Трап HL72N позволяет отводить в канализацию стоки с температурой до 100°С, при условии, что её воздействие имеет кратковременный характер (100-200 литров жидкости). Повышение температуры сливаемой жидкости до 100°С не влияет на пропускную способность трапа и его работоспособность, так как корпус трапа выполнен из полипропилена (рабочая температура которого не должна превышать 100°С). В этом случае снижается только максимально допустимая нагрузка на трап (так как корпус трапа исполняет роль несущего силового элемента), она не должна превышать 150 кг.
Характеристики:
Артикул HL 72N
Код 193863
Производитель HL
Страна Австрия
Вес, кг 0,830
Диаметр, DN мм 110
Пропускная способность, л/с 1,6
Допустимая нагрузка, кг 300
Документация
Паспорт.pdf Файлы, 152.88 КБ
Похожие товары
Ошибка

Закрыть окно

Купить в один клик
Заполните данные для заказа
Запросить стоимость товара
Заполните данные для запроса цены
Запросить цену Запросить цену